Územní studie ÚS 23 Mařatice – Kopánky, 1. máje
Tato studie navazuje na platný územní plán z roku 2020 a řeší rozvojovou lokalitu pro výstavbu přízemních rodinných domů v části Mařatice. Pořizovatelem je město Uherské Hradiště, zpracovatelem Ing. arch. Josef Hajduch.
Studie vymezuje plochy individuálního bydlení (BI-49) a veřejných prostranství (PV-48) a přináší ucelený návrh zástavby, dopravního napojení i technické infrastruktury.
Výstavba bude probíhat etapovitě, přičemž první etapa se soustředí na pás pozemků podél ulice 1. máje.
V území vzniknou rodinné domy s maximální výškou 5 m a rovnými vegetačními střechami. Každý pozemek musí mít zachováno minimálně 30–40 % zeleně. Dopravní řešení počítá s novými ulicemi Pod kostelem, Obrátilova a Hrázka, které budou koncipovány jako obytné zóny se sdíleným provozem. Z hlediska infrastruktury studie navrhuje napojení na vodovodní, kanalizační a elektrickou síť, vybudování nové trafostanice 250 kilovoltampér a retenční nádrže pro hospodaření s dešťovými vodami. Území je citlivě zasazeno do krajiny a respektuje barokní výklenkovou kapličku s lípou a kaštanem, která tvoří výraznou místní dominantu.
Celkové náklady na zainvestování území (komunikace, vodovod, kanalizace, elektro, veřejné osvětlení) činí přibližně 16,2 milionu Kč, což odpovídá asi 740 000 korun na jeden rodinný dům.
Územní studie ÚS 26 Sady – Hrušková
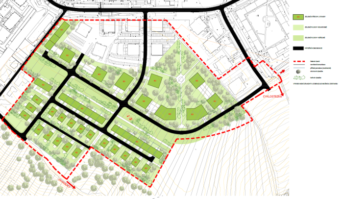
Druhá projednávaná studie řeší rozsáhlé rozvojové území o rozloze 8,6 hektaru v lokalitě Sady – sídliště Východ. Zpracovatelem je GG Archico a.s., autor Ing. arch. Pavel Stojanov. Studie byla zpracována v souladu s Územním plánem města a vyhláškou č. 501/2006 Sb. Jejím cílem je vytvořit podmínky pro výstavbu rodinných i bytových domů a stanovit jasná pravidla pro rozvoj dopravní a technické infrastruktury.
Území je rozděleno do čtyř etap výstavby – tzv. nultá etapa zahrnuje vybudování infrastruktury, tedy komunikací a inženýrských sítí, které lze realizovat nezávisle na samotné zástavbě.
Důraz je kladen na plynulý přechod mezi vyšší zástavbou sídliště na severu a nižší zástavbou směrem k jižním zahradám. Studie zachovává prostupnost území a vytváří široký pás veřejného prostranství oddělující bytové domy od rodinných domů.
Dopravní koncepce navazuje na ulice Sadová, Hrušková, Derflanská a Trnková, přičemž hlavní dopravní napojení bude soustředěno do jedné křižovatky severním směrem, aby se minimalizovala dopravní zátěž v okolních ulicích.
Celkem se předpokládá až 48 rodinných domů a přibližně 250 bytových jednotek. Studie počítá s výstavbou přes 500 parkovacích míst, což je výrazně více než stanovuje legislativní minimum.
Z hlediska technické infrastruktury se počítá s rozšířením vodovodní sítě, oddílnou kanalizací, a možností retenčních nádrží pro zachytávání dešťových vod. Napojení na elektrickou energii bude řešeno ve spolupráci s distributorem, v případě potřeby i za využití alternativních zdrojů tepla.
Veřejná prostranství a zeleň budou soustředěna především do pásu podél vysokotlakého plynovodu, který zároveň poslouží jako rekreační zóna a přirozený zelený koridor.
V území se nenacházejí žádné kulturní památky ani chráněná území. Studie zároveň respektuje principy Místní adaptační strategie města na změnu klimatu, a počítá s realizací modrozelené infrastruktury.
Obě územní studie byly zpracovány v úzké spolupráci města, odborných útvarů a projektantů. Jejich cílem je umožnit rozvoj města v souladu s kvalitou života obyvatel, krajinou i technickými možnostmi území.
„Obě územní studie představují důležitý krok k promyšlenému rozvoji města. V lokalitě Mařatice – Kopánky vznikne zázemí pro výstavbu rodinných domů, přičemž návrh respektuje charakter území, krajinné i památkové hodnoty a umožní postupnou, etapovou výstavbu. V lokalitě Sady – Hrušková jde o rozsáhlý rozvojový záměr navazující na sídliště Východ. Územní studie zde nastavuje jasná pravidla pro výstavbu bytových i rodinných domů a především řeší dopravní napojení a dostatek parkovacích kapacit, aby nová zástavba nezatížila stávající sídliště,“ uvedl starosta města Stanislav Blaha. "Tyto dokumenty jsou koncepčním podkladem pro rozhodování o rozvoji obou dotčených lokalit a umožní, aby se nová výstavba rozvíjela v souladu s kvalitním urbanistickým řešením a s technickými možnostmi území. V případě Sadů bude možné novou výstavbu navázat i na připravované Zásady pro spolupráci s investory, které zajistí finanční podíl investorů na veřejné infrastruktuře, především na zkapacitnění křižovatky v Sadech,“ doplnil starosta.
Dokumenty ve formátu PDF:











